Description
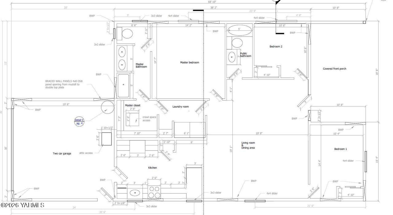
Another great build by Nicanor Nestor Gonzalez Construction LLC. At almost 1,500 sqft, this 3 bed 2 bath house comes with a two car attach garage, large primary bedroom living quarters, separated laundry room, and an open layout design. Property to have a white vinyl fenced grass lawn with underground sprinklers! Buyer is able to contribute ideas during the build to ensure the house fits their dreams! Disclosure: Photos are architectural renderings. Home is not yet finished constructed. Features, materials, and layout subject to change
-
3BEDS
-
0.17ACRES
-
2BATHS
-
01/2 BATHS
-
1,495SQFT
-
$237$/SQFT
Description
Another great build by Nicanor Nestor Gonzalez Construction LLC. At almost 1,500 sqft, this 3 bed 2 bath house comes with a two car attach garage, large primary bedroom living quarters, separated laundry room, and an open layout design. Property to have a white vinyl fenced grass lawn with underground sprinklers! Buyer is able to contribute ideas during the build to ensure the house fits their dreams! Disclosure: Photos are architectural renderings. Home is not yet finished constructed. Features, materials, and layout subject to change
© 2026 Yakima Multiple Listing Service, Inc. All rights reserved. The data relating to real estate for sale on this web site comes in part from the Yakima MLS© IDX Program. IDX information is provided exclusively for consumers' personal, non-commercial use and may not be used for any purpose other than to identify prospective properties consumers may be interested in purchasing. Information is deemed reliable but is not guaranteed accurate by the MLS or Candy Lea Stump | Keller Williams Yakima Valley. Data last updated: 2026-03-16T09:48:49.573.
